RISTRUTTURAZIONI EDILI A TORINO E PROVINCIA
Ristrutturazioni edili a Torino di qualità per la casa dei vostri sogni
State cercando casa a Torino? Perché non scegliere un immobile ristrutturato con elevata professionalità dall'Impresa Casetta Costruzioni Srl. Grazie alla nostra esperienza nel settore, garantiamo interventi di alta qualità per creare spazi eleganti, funzionali e personalizzati in base alle vostre esigenze.
Sappiamo quanto sia importante vivere in una casa che vi rappresenti e che si adatti al vostro stile di vita. Per questo, seguiamo ogni fase della ristrutturazione interni, dalla progettazione iniziale alla consegna chiavi in mano, curando ogni dettaglio con attenzione e professionalità. Che desideriate rinnovare un appartamento in pieno centro o valorizzare una casa semindipendente, lavoreremo insieme a voi per creare ambienti accoglienti e confortevoli.
Ci occupiamo di restauri conservativi per preservare il valore architettonico degli immobili e offriamo soluzioni innovative per il risparmio energetico e il comfort abitativo. Grazie ai nostri materiali di alta qualità e alle tecniche all'avanguardia, garantiamo interventi durevoli e certificati.
Scegliete la nostra ristrutturazione edili a Torino, certificata e di elevato pregio. Che si tratti di un appartamento o di una semindipendente, il nostro obiettivo è valorizzare ogni ambiente, migliorandone estetica e funzionalità.
📞 Contattateci per scoprire le ristrutturazioni edili disponibili a Torino e provincia e richiedere un preventivo personalizzato!
Richiedete una consulenza
Ristrutturazione Chieri (TO) - Via Avezzana
Splendida semindipendente
Si propone in vendita splendida casa semindipendente libera su due lati in fase di ristrutturazione completa chiavi in mano.
Situata in una tranquilla zona residenziale, questa villetta a schiera offre un giardino privato ideale per momenti di relax all'aperto.
Contattateci per saperne di più e
prenotare l'immobile.
Specifiche tecniche
La proprietà si sviluppa su due livelli più un piano interrato.
Al piano terra, troverai una luminosa zona giorno con:
- soggiorno living e cucina,
- oltre a un bagno moderno.
Al primo piano la zona notte comprende:
- tre ampie camere da letto,
- un bagno
- un balcone che regala una vista incantevole.
Il piano interrato ospita
- un'ampia cantina, perfetta per essere trasformata in una tavernetta accogliente.
Tra le caratteristiche di pregio
- riscaldamento a pavimento con caldaia autonoma a metano,
- serramenti in PVC con doppio o triplo vetro
- predisposizione per aria condizionata e stufa.
La casa viene venduta completamente ristrutturata.
Possibilità di detrazione fiscale di 45.000 euro in 10 anni.
Un'opportunità imperdibile per chi cerca comfort e qualità.
Prezzo 270.000,00
Riva Presso Chieri (TO)- Via Vittorio Veneto n.19
Attico esclusivo
Attico esclusivo in vendita a Riva presso Chieri (Torino), situato nel cuore del paese e comodissimo alla stazione ferroviaria di Pessione e di Chieri.
Questo elegante cascinale d'epoca è stato completamente ristrutturato, combinando il fascino storico con le più avanzate tecnologie edilizie.
Contattateci per saperne di più!
Specifiche tecniche
Situato al secondo ed ultimo piano, l'attico offre un ingresso indipendente attraverso una scala esterna nel cortile comune, che conduce ad un soggiorno con cucina open-space. Con una superficie commerciale di 140 m², l'attico dispone, oltre alla zona giorno, di 3 camere da letto e 2 bagni, perfetti per una famiglia o per chi desidera ampi spazi.
- Il riscaldamento e raffrescamento a pavimento autonomo,
- pompa di calore
- pannelli fotovoltaici privati da 3kw, per comfort ed efficienza energetica, rispettando la classe energetica A.
- tecnologia VMC assicura un ricircolo continuo dell'aria pulita, evitando perdite di calore e la formazione di muffe.
Acquistando in fase di costruzione, si offre la possibilità di personalizzare le finiture interne e la disposizione degli spazi. Inoltre, chi acquista potrà beneficiare di una detrazione di 48.000 euro in 10 anni e uno sconto del 20% sull'acquisto dei mobili, con un bonus mobili di 5.000 euro.
Completa l'offerta un rendering 3D gratuito e la consulenza del nostro mobiliere di fiducia.
Possibilità di box auto a 20.000 euro aggiuntivi.
Non perdete l'opportunità di vivere in un ambiente unico e raffinato!
Prezzo 229.000,00
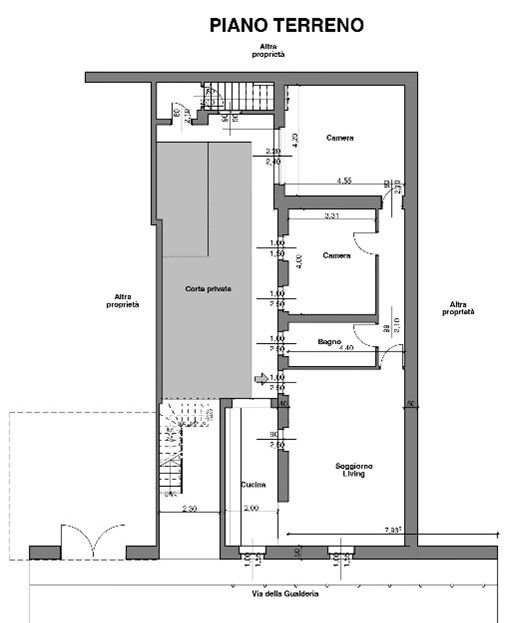
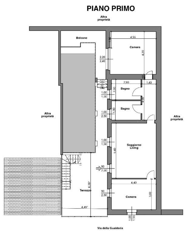
Chieri (TO) - Via Della Gualderia n.16
Ristrutturazione appartamenti
Scoprite questi splendidi appartamenti situati nel centro paese e posti in una soluzione abitativa esclusiva di soli due alloggi, senza spese condominiali e l’ideale per famiglie in cerca di comfort e tranquillità nel cuore della città.
Gli appartamenti saranno dotati di riscaldamento autonomo a gas, garantendo il massimo controllo sulla vostra efficienza energetica.
La casa verrà completamente ristrutturata sia nelle parti interne che nelle parti esterne. Vivrete in una casa moderna, nuova e pronta ad accogliervi.
Contattateci per saperne di più sulle nostre ristrutturazioni edili a Torino!
Specifiche tecniche
Possibilità di acquisto di entrambe le soluzioni abitative ideale per famiglie composte da due nuclei famigliari.
Con l'acquisto diretto dal costruttore e senza spese di agenzia, potrai beneficiare di interessanti detrazioni fiscali fino a 40.000, 00 euro in 10 anni e la possibilità di un mutuo totale.
Non perdere l'opportunità di vivere in un appartamento ristrutturato con finiture di alta qualità, situato in una delle zone più comode e desiderabili di Chieri.
Contattateci per più
informazioni o per
prenotare una visita!
Alloggio piano terra 105 mq
Nell’alloggio posizionato al piano terra l'ingresso si apre su un ampio soggiorno che conduce a una cucina abitabile, disimpegno, bagno e due confortevoli camere da letto.
Un cortile privato di circa 45 mq offre uno spazio esterno prezioso per rilassarsi e godersi il tempo all'aperto. Inoltre, l'appartamento include l'accesso a una tavernetta con cantina, perfetta per momenti tra amici in tranquillità.
Prezzo 245.000,00
Alloggio Piano Primo 95 mq
Nell’alloggio posizionato al piano primo, l'ingresso si apre su un ampio soggiorno con cucina a vista, disimpegno, doppio bagno e due confortevoli camere da letto.
Un ampio terrazzo privato di circa 50 mq ti offre uno spazio esterno prezioso per rilassarti e goderti il tempo all'aperto, perfetto per momenti tra amici in tranquillità nelle serate estive e primaverili.
Prezzo 215.000,00
Affidarsi a Casetta Costruzioni Srl per le ristrutturazioni edili a Torino significa scegliere un partner di fiducia, capace di trasformare ogni immobile in uno spazio unico e funzionale. La nostra esperienza pluriennale, unita all’attenzione per i dettagli e all’uso di materiali di alta qualità, ci permette di offrire lavori che coniugano estetica e durata nel tempo.
Ci occupiamo di ogni fase del processo, dalla progettazione all’esecuzione, garantendo un servizio chiavi in mano. Che si tratti di un piccolo intervento o di una ristrutturazione interni completa, il nostro team di professionisti lavora con precisione per realizzare ambienti confortevoli e su misura.
Oltre alla qualità artigianale, prestiamo grande attenzione all’innovazione, proponendo soluzioni moderne per migliorare il comfort abitativo, tra cui l’uso di materiali ecosostenibili e tecnologie per il risparmio energetico. Inoltre, grazie alla nostra esperienza nei restauri conservativi, siamo in grado di valorizzare edifici storici mantenendone il fascino originale.
📞 Contattateci oggi stesso per iniziare il percorso verso la casa dei vostri sogni! Siamo a vostra disposizione per una consulenza personalizzata e per offrirvi la soluzione migliore per la vostra abitazione.
Contatta Casetta Costruzioni Srl
Chiamate l'Impresa Casetta Costruzioni Srl per richiedere informazioni sulle ristrutturazioni edili a Torino!









